Göllersdorf
Auftraggeber: SGN Neunkirchen
Leistungsphasen: LPH 1-5 und 7, 2018 - 2023
Standort: 2013 Göllersdorf
Projekt: Neubau einer Reihenhausanlage bzw. eines Wohngebäudes
Fläche: ~2.150m² förderbare WNF
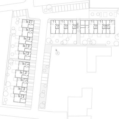
Bei der Entwicklung des Bebauungskonzeptes, ging es uns darum einen Bebauungstypus zu entwickeln, bei dem die einzelnen Einheiten individuell darstellbar sind, bei dem die Großform aber noch als raumbildende Platzkante funktioniert. Im Gegensatz zur benachbarten Siedlung bei der die heterogene Bebauung zersiedelt. Wir nennen diesen neuen Typus Dorfhaus, weil er ähnlich wirkt wie ein einzelnes Haus in einem Straßendorf. Die einzelnen Einheiten sind unterschiedlich ausgeformt mit Vor- und Rücksprüngen, verschiedene Farben, Oberflächen und Dachneigungen - trotzdem bilden die Blöcke eine Einheit an einer Raumkante. Bei den Reihenhäusern ist die Bauklasse nicht voll ausgenützt, dadurch ergibt sich ein sanfterer Übergang zur niederen Siedlung.
